Interior Designer

07403630534
SIXTY-SIX
Spring 2020 (Third Year University Project)
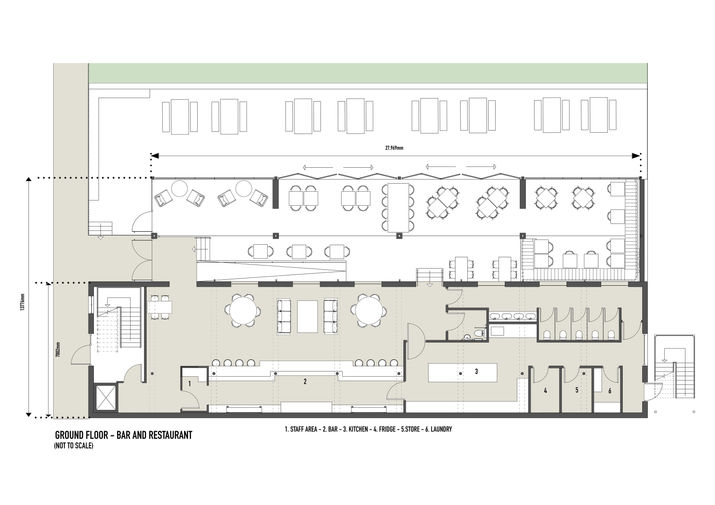
Based in the upcoming baltic triangle area of Liverpool, Sixty-Six is an apart-hotel that offers guests hotel luxuries with the flexebility and privacy of their own living space. Theres are studios and 1-2 bed apartments available with views over the river Mersey. There is also a bar/cafe on the ground floor with an outdoor seating area and garden, making it a destination in its own right for locals too.
​
Set in an old shipping suppliers built in 1857 (66 Bridgewater Street), the industrial building is in an extremely derelict state and is in need of a complete overhaul to make it suitable for a hotel. Although the building is not listed, I wanted to make sure I retained original character whilst adding new extensions to create a modern intervention.













